Sponsored Links

Previous | Next | Discuss :: Free Advice (General Feng Shui)


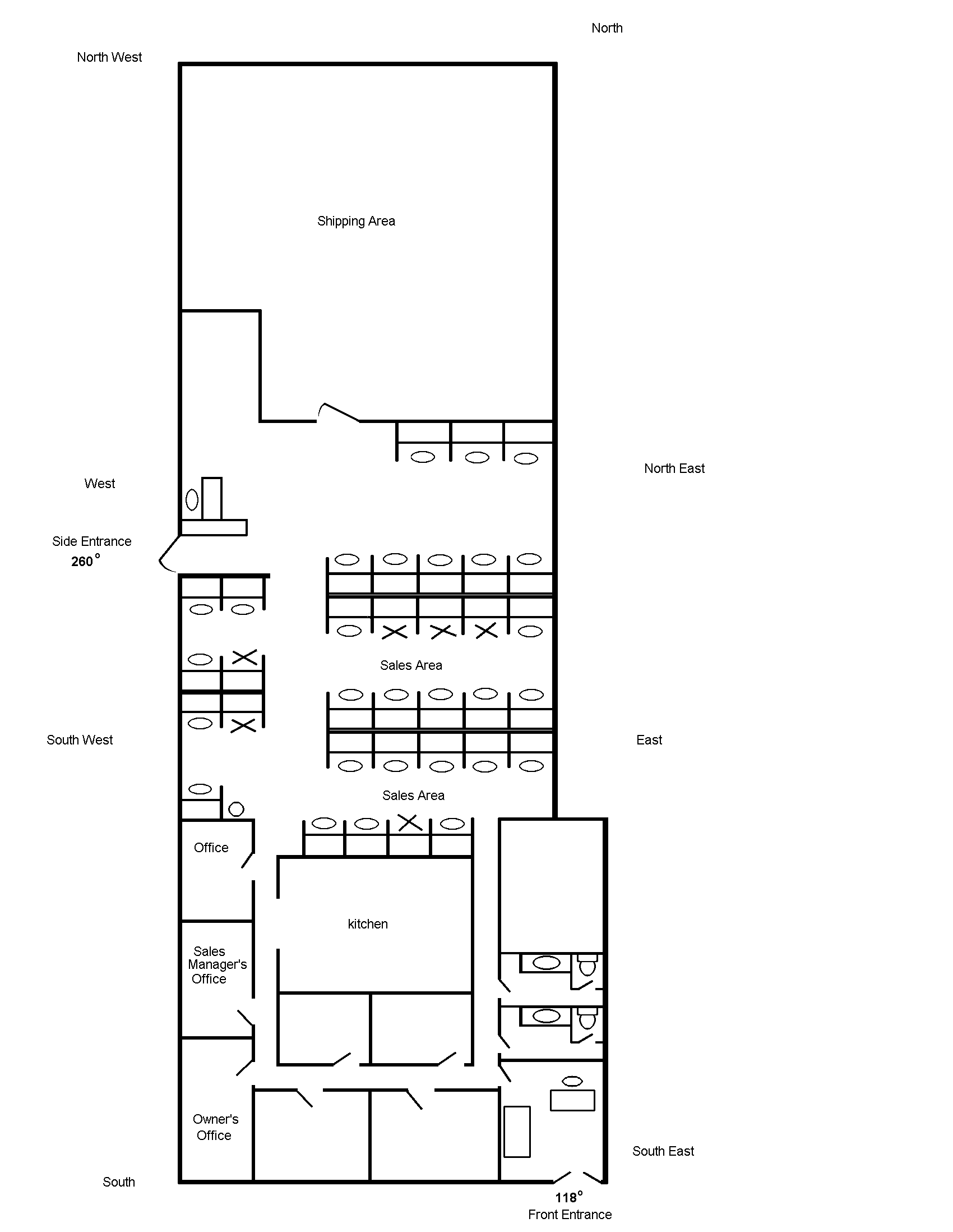
Topic: Shipping area in an office , 1 Attachments
Conf: Discuss :: Free Advice (General Feng Shui), Msg: 6382
From: Anon (Hidden from Privacy)
Date: 7/2/2000 06:04 AM

Dear Cecil,

Sorry it took me so long to get this layout to you.

I couldn't find the center because I don't know if I should include the shipping area or not. The cubical with x marked on it are the ones that are opened to me. I also know in a month or so, there will be three other people leaving. So if you see a location that is best for me, please note it even though there is no x there.

>If you want ot do a Flying
>Star chart, please e-mail me
>privately so that I can give
>you a free credit for it.

Thank you for your generous offer to help me again. I don't know if I would need it though. Because if the shipping area is included in the analysis, then the compass reading of the main door from the center of the building is almost exactly the same as the reading of my home. The two structures are both built in the same era, so I assume that the flying chart will be the same. But if the shipping area is not considered part of the building, then I would need another chart.

I realize that the main entrance is in the SE which is death to me. I am using a side entrance from the parking lot that is in my Longevity or Health sector depending on whether the shipping area is considered or not. Do you think that is good enough to over come the bad front entrance?

Thanks.

Cheui May

>On 6/21/00 1:53:00 AM, Cheui May Heui
>wrote:
>>Dear Cecil,
>>
>>How are you? Hope you and
>>Robert are well.
>>
>>I haven't participated for a
>>while, because I placed the
>>cures that you recommended and
>>my attitude seemed to have
>>changed and now instead of
>>being sick and depressed,
>>wondering how I'm going to get
>>out of debt, I've started
>>working. Thank you for all
>>the help that you have given
>>me.
>>
>>I am working as a phone rep
>>for a company that sells
>>computer supplies. Being a
>>weak water, would that be a
>>lucrative business for me?
>>
>>My new manager is very kind to
>>me and have agreed to let me
>>choose any desk that is
>>available. I would like to
>>choose the best location for
>>my element and have drawn a
>>layout of the building. It is
>>about 75 feet wide by 200 feet
>>long. In the front 2/3 are
>>the offices and the back is
>>the shipping. My question is
>>shall I include the shipping
>>area in the analysis?
>>
>>Thanks,
>>
>>Cheui May
>
>
>

Click to open!Office(2).GIF
(34,914 bytes)

Copyright 1996-onwards Geomancy.Net, Cecil & Robert Lee. All Rights Reserved.

International Copyright & Intellectual Property Rights Notice
All messages posted TO THIS SITE which includes this forum and other contents made accessable by us to the public cannot be copied; reproduced; recompiled; stored in a retrieval system; or transmitted, in any form or by any means; electronic; mechanical; photocopying; recording; or otherwise. - Learn more

Please kindly contact us at support@geomancy.net. if you should encounter any breach of Copyright and Intellectual Property rights. Thank you in advance!

Back to Feng Shui at Geomancy.Net

 [ Site Search | Forum Search | Picture Search | Site Map ]

 

Help Desk: (65) 9785-3171

 

 

 

Highlights

Extend your learning with Master Cecil Lee's Applied Feng Shui Made Easy Book.

" Real People, Real Life, Real Situation " - Learn from thousands of actual case studies at our popular Free Advice Forum.

" Worry-Free Professional Feng Shui Services " - from the authors of Geomancy.Net

[ Award & Accolades ]
 

Site Navigation

Home
   Feng Shui Freebies
   Feng Shui Resources
     Fun with Feng Shui
     Major FS Theories
     Feng Shui Articles
     Feng Shui Advice
     FS Reference
     Slide Show
     Calendar of Events
     Educational Polls
     Site Review
     Yearly Forecast
     Chinese Horoscope
     Popular Topic
   Picture Resources
   Chinese Horoscope
   Personalised Reports
   e-Bookstore
   Feng Shui Courses
   Products & Services
   Consultation Services
   Shop @ Geomancy
   Students Services
   Events @ Geomancy
   Webmaster
   FAQ / Help
   About Us
   Contact Us
   Members Area
   Ask Expert Forum
   Search Website
   Site Tools
   Others Areas
   Live Chat
   Recommend Us
   Site Map

Google SiteSearch

Geomancy.net Web
Search Powered by Google

Sponsored Links